浙江给排水资料库

 找回密码
 注册
查看: 137|回复: 0

[相关规范] 《审图常见问题解析(给排水2025-02)》(北京规资委&京审协)

[复制链接]
发表于 2026-1-6 19:25:34 | 显示全部楼层 |阅读模式
链接
01  常见问题
1、消防 | 消防控制室采用降板处理,路过的管道埋设在垫层内,是否可以
答:不可以
按照《建筑防火通用规范》GB55037-2022第1.1.8条第5款要求,消防控制室内不应敷设或穿过与消防控制室无关的管线。虽然管线敷设在垫层内,但垫层范围也属于消防控制室,同时室内通常设有架空地板,架空层内走电气管线,室内布置有消防控制设备柜等,即使在架空地板下有实土,管线敷设在实土内,在后期管道维护中,也不可避免的会对消防控制室产生影响。(由北京住源工程咨询有限公司—李向军提供)

2、消防 | 灭火器是否可以跨越防火分区保护?
答:不可以。
《消防设施通用规范》GB55036-2022第10.0.3条规定:灭火器配置场所应按计算单元计算与配置灭火器......。《建筑灭火器配置设计规范》GB 50140—2005第7.2.1条第3款规定:同一计算单元不得跨越防火分区和楼层。综上,灭火器不可以跨越防火分区保护。(由中京同合国际工程咨询(北京)有限公司—孙志伟提供)

3、消防 | 设置供室外消火栓系统用水的消防水池时,其取水口是否可替代室外消火栓?
答:取水口可作为室外消火栓使用,但应满足相关要求。
按《消防给水及消火栓系统技术规范》GB50974-2014中相关条款:
  6.1.5  市政消火栓或消防车从消防水池吸水向建筑供应室外消防给水时,应符合下列规定:供消防车吸水的室外消防水池的每个取水口宜按一个室外消火栓计算,且其保护半径不应大于150m。
  7.2.5  市政消火栓的保护半径不应超过150m,间距不应大于120m。
  7.3.2  建筑室外消火栓的数量应根据室外消火栓设计流量和保护半径经计算确定,保护半径不应大于150.0m,每个室外消火栓的出流量宜按10L/s-15L/s计算。当室外消火栓系统设计流量不大于15L/s,且消防水池取水口的保护半径不大于150m时,可替代室外消火栓。当室外消火栓系统设计流量大于15L/s,或消防水池取水口的保护半径大于150m时,应按规范要求增设室外消火栓
(由北京建院工程咨询有限公司—杨荣华提供)

02  典型问题案例剖析
【排水沟接入污水集水坑的问题解析】

1、问题描述:某大学博士生公寓楼项目,地上4层,地下2层。地下二层功能为活动室,设有公共卫生间,卫生间污水排入相邻报警阀室内的污水集水坑,同时报警阀室地面废水也排入此集水坑,排水沟设过水洞与集水坑连接,见图1。
image.png
2、相关标准:《建筑给水排水与节水通用规范》GB55020-2021,4.3.2  室内生活排水系统不得向室内散发浊气或臭气等有害气体。
3、问题解析:污水集水坑收集卫生间的粪便污水,会聚集大量的污浊气体。本项目排水沟接人污水集水坑,接口处仅设过水洞与集水坑相连,导致集水坑内气体与室内大气直接相通,污水集水坑内的污浊气体可通过过水洞直接排人室内,污染室内环境。
4、改进措施
(1)排水沟接入集水坑处设置自带水封地漏或者设置下设存水弯的直通地漏
(2)排水沟废水排入其他废水集水坑
(由北京国标筑图建筑设计咨询有限公司王岩提供)

【某项目非人防区的自动喷水灭火系统管道穿越人防围护结构问题解析】
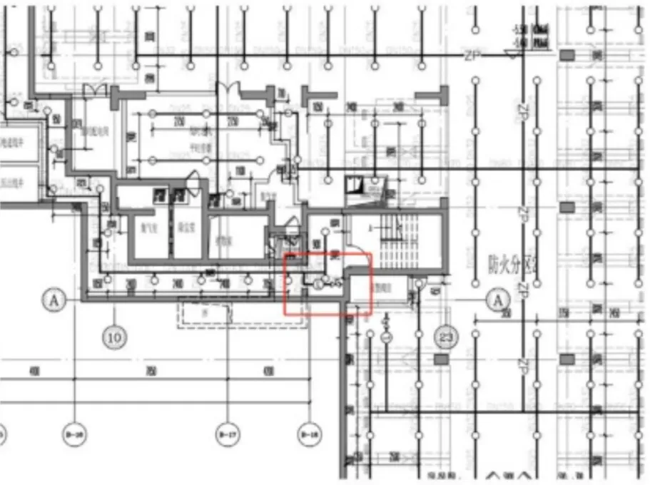
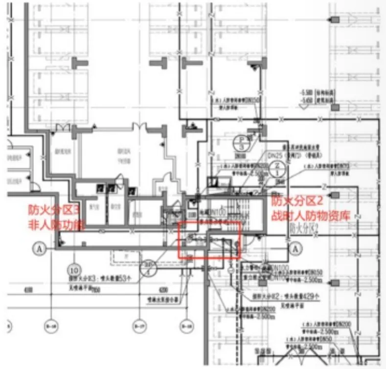
1、问题描述:某工程总建筑面积151721.89m2,地上建筑面积130952.99m2,地下建筑面积20768.9m2。主要包括公寓型租赁住房、配套及地下车库。地下人防建筑面积共14729m2,共7个防护单元,其中5个防护单元战时功能为二等人员掩蔽部,2个防护单元战时功能为人防物资库。其中一个报警阀室设置在人防区内,非人防区的自动喷水灭火系统管线接自该报警阀,见图1、图2。
image.png
image.png
2、相关标准:《平战结合人民防空工程设计规范》DB11/994-20213.1.5  与人防工程平时和战时功能无关的设备房间应设置在防护区之外。穿过人防围护结构的管道应符合下列规定:1  与人防工程无关的管道不应穿过人防围护结构;上部建筑的生活污水管、雨水管、燃气管等不应进入人防工程。
3、问题解析:《平战结合人民防空工程设计规范》DB11/994-2021第3.1.5条规定与人防工程平时和战时功能无关的设备房间应设置在防护区之外,并在第1款规定与人防工程无关的管道不应穿过人防围护结构。条文说明给出解释,专供非人防建筑平时使用的设备用房,应设在防护区之外,无关管道是指人防工程无论战时还是平时均不使用的管道。在本项目中,将报警阀间设置在防护区内,所设置的报警阀共保护两个防火分区,其中一个防火分区战时功能为人防物资库,另一个防火分区为非人防功能。设计师将报警阀间设置在人防防护区内虽欠妥但不违规,但从报警阀接出的非人防防火分区的自喷管道,无论战时还是平时,均与人防功能无关,属于规范条文说明无关管道的范畴。此管道穿过人防围护结构,会导致人防围护结构整体强度和密闭性均降低,该无关管道违反《平战结合人民防空工程设计规范》第3.1.5条第1款。
4、改进措施:非人防防火分区的自喷管道,由其他非人防区域报警阀接出,人防内的报警阀,只保护该人防单元内的自喷系统
(由中设安泰(北京)工程咨询有限公司—朱琳提供)

03  专业技术交流
【对给水管道卫生安全要求的分析】饮用水是人类生活中不可或缺的重要资源,其安全与健康直接关系到每一个人的身体健康。不管长期还是短期同饮用水接触的设备、材料、药剂都不应对预期使用的水质产生有害影响。
一、规范内容
1、《城市给水工程项目规范》GB55026-2022第2.2.6条:城市给水工程中涉水的设备、材料和药剂,必须满足卫生安全要求
2、《建筑给水排水与节水通用规范》GB55020-2021第2.0.3条:建筑给水排水与节水工程选用的材料、产品与设备必须质量合格,涉及生活给水的材料与设备还必须满足卫生安全的要求
    以上两本规范的不同条款均规定了给水系统中涉水的设备、材料、药剂的卫生许可原则。给水系统涉水的设备、材料应符合现行国家标准《生活饮用水输配水设备及防护材料的安全性评价标准》GB/T17219-1998的规定。涉水药剂还应符合国家相关标准的规定。
二、常见问题及案例分析
    设计文件中应明确给水系统涉水的设备、材料符合现行国家标准《生活饮用水输配水设备及防护材料的安全性评价标准》的规定,涉水药剂符合国家相关标准的规定。
    某市政给水管道工程的设计文件未见说明给水系统中涉水的设备、材料、药剂的卫生许可原则。但在设计说明中明确给水管道采用球墨铸铁管并满足《水及燃气用球墨铸铁管、管件和附件》GB/T13295-2019的要求。
    因《水及燃气用球墨铸铁管、管件和附件》中第4.1.4条的规定:在设计状态下使用时,不管是长期还是短期同人类饮用水相接触,球墨铸铁管、管件及其接口不应对预期使用的水质产生有害影响。球墨铸铁管线(包括管道、管件和附件在内)输送饮用水时,与水接触的材料应满足《生活饮用水输配水设备及防护材料的安全性评价标准》或相关规范的要求。所以可认为该市政给水管道工程满足卫生许可原则,即满足《城市给水工程项目规范》第2.2.6条的要求。
    若设计参考的其他规范已对给水系统中涉水的设备、材料、药剂的卫生许可原则进行了说明,则表示已经满足《城市给水工程项目规范》第2.2.6条或《建筑给水排水与节水通用规范》第2.0.3条的要求
(由北京中询国际工程顾问有限公司—霍贞提供)

您需要登录后才可以回帖 登录 | 注册

本版积分规则

QQ|小黑屋|浙江给排水资料库 ( 浙ICP备17050246号-1 )

GMT+8, 2026-3-16 15:42 , Processed in 0.070675 second(s), 8 queries , File On.

Powered by Discuz! X3.4

Copyright © 2001-2023, Tencent Cloud.

快速回复 返回顶部 返回列表